SD11 Sections _ Layout_Page_3.png
 
 

 

art-bloc-hero8_v2.jpg

ART Bloc | Slingshot Architecture

Project Roles: SD, DD, CD + CA

  • Unit Design, Interior Architecture, Interior Detailing + Stair Design

  • ANSI, ADA, + IBC application

Project Team: Five Person Team

  • Dan Drendel | Partner-in-Charge

  • Josh Williams | Project Lead

  • Tyler Countess | Model Owner

  • Gabbi Weineke | Interiors

Program: Mixed Use Residential

Location: Waterloo, Iowa

Status: Completed, 2020

Area: 70,500 SQFT (72 Units)

 

The Art Bloc is a mixed-use residential building with commercial program on the first and second floors. The design of the building is meant to emulate the carving of a marble block that is lofted into the air. The sculptural form relates to the adjacent Art Museum and Waterloo’s emerging art scene.

2017.06.19%2B-%2BARTS%2BOne%2BBed%2BPlan.jpg
Screen Shot 2020-03-29 at 2.18.14 PM.png

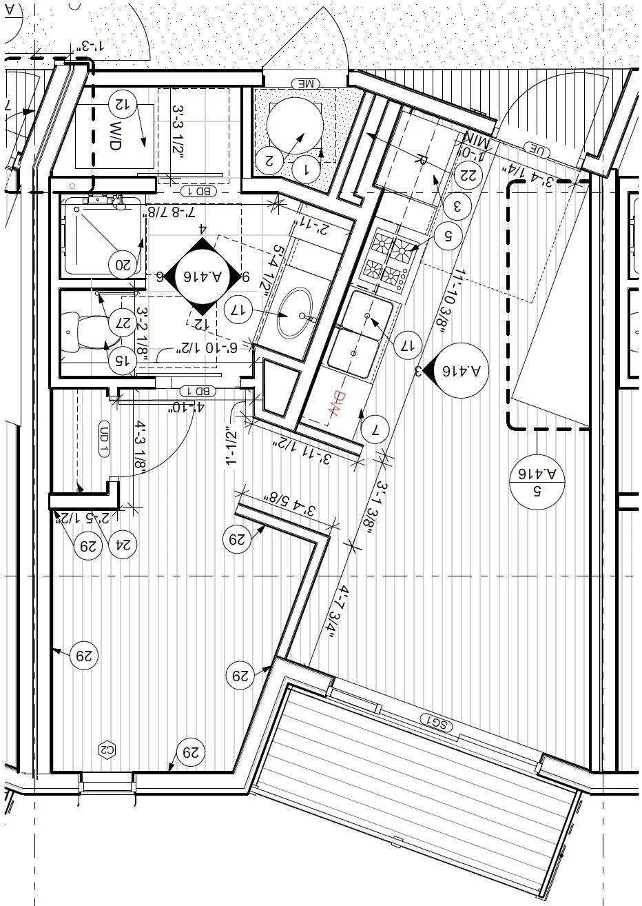
The design of each unit is focused on the exterior views of the river. The angles from the exterior inform the layout of the unit. Each living room is angled to make the most of the present views, framing the large balcony windows from the unit entryway.

 
Screen Shot 2020-03-29 at 2.12.49 PM.png
 

The kitchen island recreates the overall shape of the unit and brings it into direct interaction with the resident.

Image courtesy of Merge Urban Development

Image courtesy of Merge Urban Development

Image courtesy of Merge Urban Development

Image courtesy of Merge Urban Development

The design and construction of the building needed to work around an existing multi-level public plaza. To account for this in the design, the interior structure of the building needed to be inset from the property lines and the upper floors were cantilevered from the structural core.

 
Pages+from+2018.07.10+ARTS+-+100%25+CD+VE-2.jpg
 
Image courtesy of Merge Urban Development

Image courtesy of Merge Urban Development

The walls of the building were panelized for construction, allowing for a rapid assembly of the building during the spring and summer months. Each panel needed to be reviewed and approved prior to moving forward with construction.

Image courtesy of Merge Urban Development

Image courtesy of Merge Urban Development