SD19 Sections _ Layout.png
 
 

 

PAWS + PINTS | Slingshot Architecture

Project Roles: Concept, SD, DD, CD, + CA

  • Project Lead, Management of an internal design team, point of contact for the project, Client + Consultant Coordination

  • ADA + IBC application

Project Team: Four Person Team

  • David Voss | Partner-in-Charge

  • Tyler Countess | Support

  • Tiffany Young | Interiors

Program: Mixed-use Commercial, Bar/Restaurant, Dog Park, Boarding + Training

Status: In Construction

Area: 34,000 SQFT

 

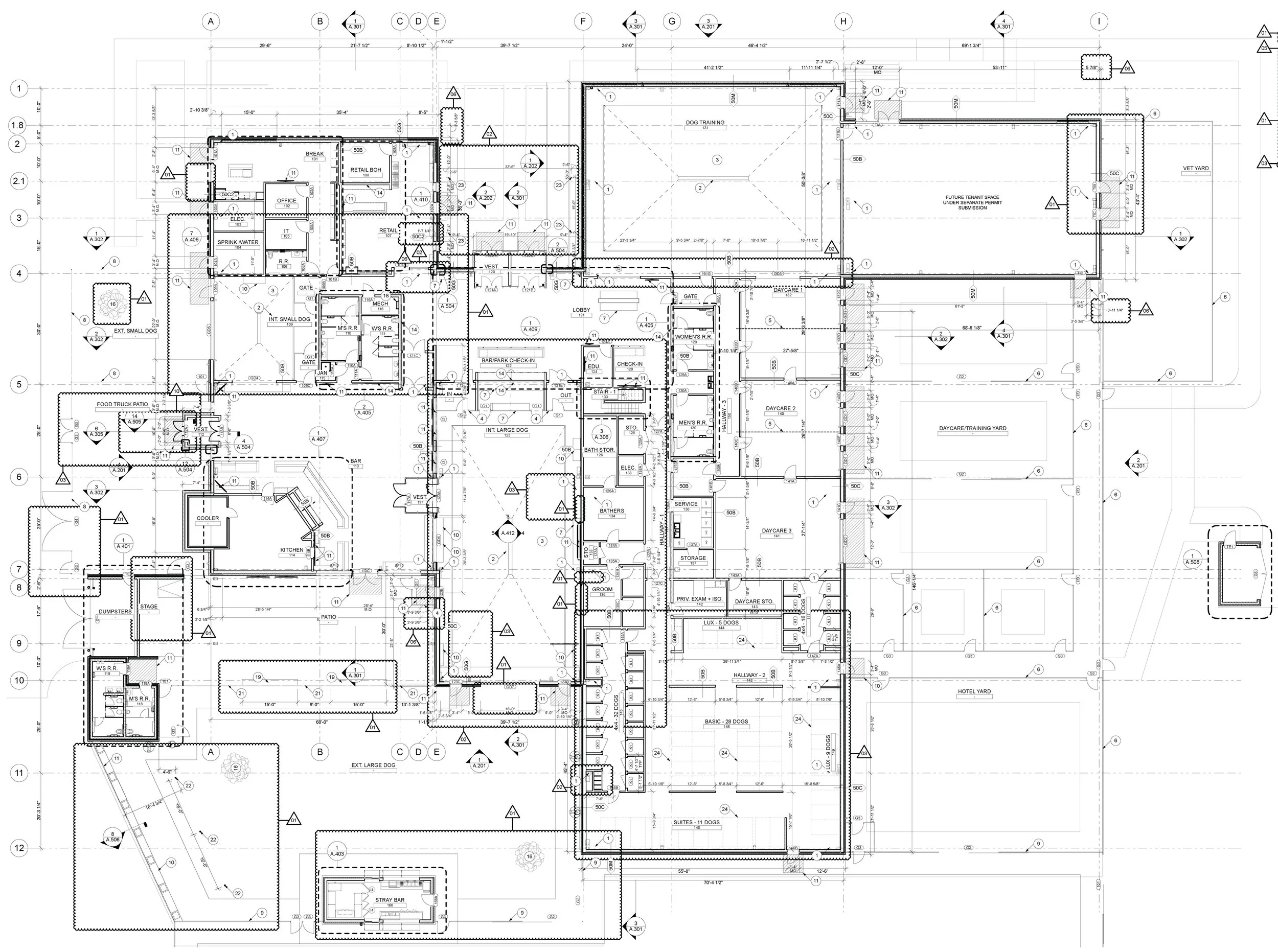
The Paws and Pints project is intended to be an all-in-one stop for pet owners. As such, a variety of different programs needed to be integrated into one seamless floor plan. This lead to the simple shifted bar design.

Pages+from+2019.10.24+DOG+-+100%25+SD+Set_Page_1.jpg

Site Plan

North Elevation

The deep Northern courtyard emphasizes the entrance for the majority of the patrons, while the inset doors to the East denotes entry for the future tenant, a veterinary clinic.

Since non-service animals are not allowed within dining areas in Des Moines, Iowa, there needed to be a clearly defined “no dog” space, while maintaining a connection for ease of use. While dogs are prohibited within the interior bar area, there are several adjoining spaces that permit them and allow access to the bar amenities via service windows.

First Floor Plan

By surrounding the bar with dog friendly spaces and view corridors, the entire space feels cohesive. An owner is able to purchase a beer and stay with their dog while they’re having fun.

The structure of the project is a pre-engineered metal building, which after thorough coordination, was integrated into the overall design of the project.